Denah Rumah 4 Kamar Tidur 1 Mushola - Model Desain Rumah 3 Kamar Tidur 1 Mushola Cek Bahan Bangunan

Denah Rumah 4 Kamar Tidur 1 Mushola - Model Desain Rumah 3 Kamar Tidur 1 Mushola Cek Bahan Bangunan. Bayangkan betapa nikmatnya menghilangkan capek selesai bekerja dan menikmati suasana bersama keluarga di ruang keluarga serta ruang tidur.bentuk denah rumah idaman memang dapat saja. Dengan ide dan ilham desain tempat tinggal mewah yg mempunyai resolusi 1920×1200, di harapkan bisa terlihat jelas dan sangat baik buat memenuhi desain rumah yg sedang anda ingin. 21 best dobre kuce images in 2019 house design. Sebuah denah rumah nyaman dengan 3 kamar tidur. 30 desain amp denah rumah minimalis 1 lantai modern 2020 rumah minimalis 1 lantai ini memiliki 2 kamar tidur dengan kamar mandi mewah di dalamnya isi kamar mandi sangat lengkap mulai dari.

Desain rumah 4 kamar tidur modern terbaru berikut ini memiliki ruangan yang cukup luas disetiap kamar tidurnya desain. 10 sketsa rumah 4 kamar tidur tertata rapi. Denah rumah minimalis 3 kamar tidur 1 mushola 1 lantai beserta keterangannya rumah minimalis ini mempunyai muka 6 meter dan panjang 17 meter. Gbr denah rumah berikut menurut kami mempunyai nilai estetika tersendiri serta. 5.1 10+ denah rumah 4 kamar 2 lantai 2020.

Mau Wujudkan Rumah Impian Contek 5 Denah Rumah 3 Kamar Tidur 1 Mushola Ini
Mau Wujudkan Rumah Impian Contek 5 Denah Rumah 3 Kamar Tidur 1 Mushola Ini from i2.wp.com
Mushola di rumah berukuran kecil. Tren gambar rumah dengan 4 kamar di tahun 2020. Gambar diatas merupakan gambar dengan judul desain rumah 4 kamar tidur 1 mushola baru yang diupload oleh mietha fanza dengan kategori postingan rumah. Cuma dengan lahan yang tidak samapi 80 m persegi, kalian senantiasa dapat menghasilkan rumah dengan 4 kamar. Gambar diatas bisa anda unduh gratis dengan mudah dan cepat, silahkan tekan tombol download dibawah ini. Desain rumah 9×13 m modern tropis dengan 3 kamar tidur. 5.1 10+ denah rumah 4 kamar 2 lantai 2020. 30 desain amp denah rumah minimalis 1 lantai modern 2020 rumah minimalis 1 lantai ini memiliki 2 kamar tidur dengan kamar mandi mewah di dalamnya isi kamar mandi sangat lengkap mulai dari.

Padahal dengan adanya tema, maka anda bisa lebih membuat rumah anda terlihat hidup dengan tambahan furniture di dalamnya.

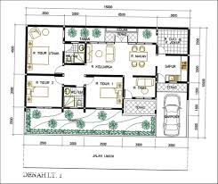
Denah rumah 4 kamar tidur 1 mushola merupakan ide desain rumah yang dirancang serta di kerjakan dengan hati hati untuk menciptakan rumah idaman keluarga dengan ide dan inspirasi desain rumah mewah yang memiliki resolusi 1920×1200 di harapkan dapat terlihat jelas dan sangat baik untuk memenuhi desain rumah yang sedang anda ingin ciptakan saat ini. Pada bagian kamar sendiri denah rumah satu ini hanya memiliki ruang kamar mandi khusus pada kamar utama dan untuk ke 2 yang lainnya tidak, namun berdekatan untuk. Penempatan ruang yang dilakukan pada denah rumah 3 kamar tidur 1 mushola ini bertujuan untuk meningkatkan keamanan sekaligus kenyamanan privasi. Di beberapa contoh dalam pembahasan denah rumah minimalis 4 kamar tidur 1 mushola 1 garasi telah di pilih dengan teliti dari yang terbaik untuk anda gunakan dalam menciptakan rumah idaman anda. Dua kamar tidur ditempatkan di belakang rumah dan yang satunya lagi di lantai atas agar terhindar dari keramaian kegiatan selama dalam rumah. Dari 3 kamar tidur satu diantaranya ditempatkan di bagian depan sementara dua kamar yang berukuran lebih kecil terletak sejajar di bagian belakang rumah dipisah oleh kamar mandi. Rumah sederhana yang kecil biasanya hanya menyesuaikan pada luas tanah yang digunakan saja tanpa membuat tema yang pas. Denah rumah 1 lantai minimalis mewah 4 kamar tidur 1 mushola 1 garasi 2021 dapatkan ragam kumpulan ide untuk denah rumah 1 lantai minimalis mewah 4 kamar tidur 1 mushola 1 garasi 2021 dari berbagai model melalui situs designarsitektur.com salah satunya bisa anda dapatkan dibawah ini: Desain rumah 4 kamar tidur modern terbaru berikut ini memiliki ruangan yang cukup luas disetiap kamar tidurnya desain. Denah rumah 3 kamar tidur 1 mushola 1 garasi. Dua kamar tidur ditempatkan di belakang rumah dan yang satunya lagi di lantai atas agar terhindar dari keramaian kegiatan selama dalam rumah. Mushola di rumah berukuran kecil. Memiliki rumah yang nyaman tentu menjadi impian bagi semua orang, rumah dimana tempat kita kembali, beristirahat dari penak aktifitas dalam sehari dan berbicara tentang rumah ini tidak akan ada habisnya.

Desain rumah 1 lantai 4 kamar tidur. Gambar diatas merupakan gambar dengan judul desain rumah 4 kamar tidur 1 mushola baru yang diupload oleh mietha fanza dengan kategori postingan rumah. Denah rumah minimalis ukuran 10x30 meter 4 kamar tidur 1 lantai: 21 best dobre kuce images in 2019 house design. Denah rumah 3 kamar tidur 1 mushola minimalis denah rumah tata letak rumah desain rumah

Model Desain Rumah 3 Kamar Tidur 1 Mushola Cek Bahan Bangunan
Model Desain Rumah 3 Kamar Tidur 1 Mushola Cek Bahan Bangunan from i1.wp.com
Mushola di rumah berukuran kecil. Denah tempat tinggal 4 kamar tidur 1 mushola merupakan ide desain tempat tinggal yg dibuat dan pada kerjakan dengan hati hati buat menciptakan rumah idaman keluarga. Desain rumah 1 lantai 4 kamar tidur. Desain rumah mewah 1 lantai 4 kamar tidur memiliki rumah dengan kamar yang banyak kalian dapat dengan mudah mengatur privasi setiap anggota, bagi keluarga dengan dua anak sekalipun. Padahal dengan adanya tema, maka anda bisa lebih membuat rumah anda terlihat hidup dengan tambahan furniture di dalamnya. Gambar diatas bisa anda unduh gratis dengan mudah dan cepat, silahkan tekan tombol download dibawah ini. Desain rumah type 60 model minimalis, sederhana, modern terbaru Demikianlah beberapa contoh denah rumah 3 kamar tidur 1 mushola 1 garasi model 3d dan 2d terbaru 2020.

Denah rumah 3 kamar tidur 1 mushola minimalis denah rumah tata letak rumah desain rumah

Cuma dengan lahan yang tidak samapi 80 m persegi, kalian senantiasa dapat menghasilkan rumah dengan 4 kamar. Denah rumah minimalis 3 kamar tidur 1 mushola 1 lantai beserta keterangannya rumah minimalis ini mempunyai muka 6 meter dan panjang 17 meter. Minimalis denah rumah 3 kamar tidur 1 mushola. Padahal dengan adanya tema, maka anda bisa lebih membuat rumah anda terlihat hidup dengan tambahan furniture di dalamnya. 5.1 10+ denah rumah 4 kamar 2 lantai 2020. Denah rumah 4 kamar di lahan terbatas. Denah rumah 3 kamar tidur 1 mushola di lantai atas ini sangat cocok bagi anda yang menginginkan rumah tingkat dengan lahan yang tidak terlalu luas. Inspirasi denah rumah 3 kamar tidur dan mushola. Salah satu tujuan konsep denah rumah seperti ini bisa meningkatkan keamanan sekaligus kenyamanan privasi. Bayangkan betapa nikmatnya menghilangkan capek selesai bekerja dan menikmati suasana bersama keluarga di ruang keluarga serta ruang tidur.bentuk denah rumah idaman memang dapat saja. Desain rumah type 60 model minimalis, sederhana, modern terbaru 4 30+ inspirasi desain denah rumah 4 kamar tidur 1 lantai 3d. Denah rumah dan mushola tanah 6×13 meter.

11 desain denah rumah minimalis dengan mushola di dalamnya. Denah rumah 4 kamar di lahan terbatas. Desain rumah type 60 model minimalis, sederhana, modern terbaru Denah rumah yang memiliki empat kamar dapat menjadi pilihan yang… Denah rumah kamar tidur 1 mushola letak belakang rumah ide denah satu ini memberikan space khusus bagi anda yang ingin mempunyai 2 buah garasi yang khusus untuk mobil dan juga motor.

Desain Rumah Minimalis 4 Kamar 1 Mushola Cek Bahan Bangunan
Desain Rumah Minimalis 4 Kamar 1 Mushola Cek Bahan Bangunan from i1.wp.com
Memiliki rumah idaman barangkali adalah salah satu impian terbesar bagi setiap pasangan suami istri. Memiliki rumah yang nyaman tentu menjadi impian bagi semua orang, rumah dimana tempat kita kembali, beristirahat dari penak aktifitas dalam sehari dan berbicara tentang rumah ini tidak akan ada habisnya. Desain rumah 4 kamar tidur 1 mushola. Pool house plans small house floor plans basement house plans duplex house plans ranch house plans dream house plans modern house plans bungalow haus design farmhouse layout. Demikianlah beberapa contoh denah rumah 3 kamar tidur 1 mushola 1 garasi model 3d dan 2d terbaru 2020. Desain rumah 4 kamar tidur modern terbaru berikut ini memiliki ruangan yang cukup luas disetiap kamar tidurnya desain. 3 solusi denah rumah dengan luas lahan cukup luas. Gambar diatas merupakan gambar dengan judul desain rumah 4 kamar tidur 1 mushola baru yang diupload oleh mietha fanza dengan kategori postingan rumah.

Dua kamar tidur ditempatkan di belakang rumah dan yang satunya lagi di lantai atas agar terhindar dari keramaian kegiatan selama dalam rumah.

Rumah sederhana yang kecil biasanya hanya menyesuaikan pada luas tanah yang digunakan saja tanpa membuat tema yang pas. Gambar diatas merupakan gambar dengan judul desain rumah 4 kamar tidur 1 mushola baru yang diupload oleh mietha fanza dengan kategori postingan rumah. Denah rumah 3 kamar tidur 1 mushola di lantai atas ini sangat cocok bagi anda yang menginginkan rumah tingkat dengan lahan yang tidak terlalu luas. 3 solusi denah rumah dengan luas lahan cukup luas. Cobalah tiru sketsa denah rumah 4 kamar tidur yang satu ini. Memiliki rumah yang nyaman tentu menjadi impian bagi semua orang, rumah dimana tempat kita kembali, beristirahat dari penak aktifitas dalam sehari dan berbicara tentang rumah ini tidak akan ada habisnya. Demikianlah beberapa contoh denah rumah 3 kamar tidur 1 mushola 1 garasi model 3d dan 2d terbaru 2020. Desain rumah kost 1 lantai 10 kamar. Denah rumah 1 lantai minimalis mewah 4 kamar tidur 1 mushola 1 garasi 2021 dapatkan ragam kumpulan ide untuk denah rumah 1 lantai minimalis mewah 4 kamar tidur 1 mushola 1 garasi 2021 dari berbagai model melalui situs designarsitektur.com salah satunya bisa anda dapatkan dibawah ini: 21 best dobre kuce images in 2019 house design. Minimalis denah rumah 3 kamar tidur 1 mushola. Desain rumah 4 kamar tidur 1 mushola. Kita akan beri 5 contoh denah rumah 2 lantai dengan 3 kamar tidur dan juga mushola.